


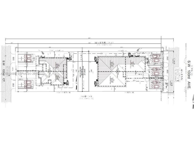
Zoning approval is in place under the workforce housing program for a duplex and triplex (five units total), along with full construction drawings.
Mortgage Calculator
*Private Mortgage Insurance - included if downpayment is less than 20% of mortgage.
**Monthly payment - a sum of Principle, Interest, PMI, Tax, Insurance.
| Name | Address | Type | # of Students | Grades | Distance |
|---|---|---|---|---|---|
| Air Base K-8 Center For International Education | 12829 SW 272ND ST | public | 1109 | PK - 8 | 0.78 mi |
| Kinderkids Learning Center And Preschool Ii | 26049 S DIXIE HWY | private | 15 | PK - 3 | 0.88 mi |
| Dr. William A. Chapman Elementary School | 27190 SW 140TH AVE | public | 554 | PK - 5 | 0.89 mi |
| Play Learn Childcare Center Inc | 25001 SW 127TH AVE UNIT 103 | private | 86 | PK - 5 | 0.98 mi |
| Mirra Educational Centers Inc. | 26600 SW 146 CT STE 505 | private | 798 | PK - 12 | 1.38 mi |
| Coconut Palm K-8 Academy | 24400 SW 124TH AVE | public | 1210 | PK - 8 | 1.5 mi |
| Mandarin Lakes K-8 Academy | 12225 SW 280TH ST | public | 781 | PK - 8 | 1.5 mi |
| Title I Migrant Education Program | 28205 SW 124 COURT BLDG F ROOM F019 | public | 11 | PK - 12 | 1.52 mi |
| Academir Charter School Of Math And Science | 13330 SW 288TH STREET | public | 399 | KG - 5 | 1.69 mi |
| Promised Land Academy For Christian Educat | 27500 OLD DIXIE HWY | private | 63 | PK - 12 | 2.12 mi |
| Summerville Advantage Academy | 11575 SW 243RD ST | public | 457 | KG - 8 | 2.17 mi |
| Southpoint Academy | 27835 S DIXIE HWY | private | 62 | PK - 11 | 2.19 mi |
| Children S Rainbow Day School | 22940 OLD DIXIE HWY | private | 232 | PK - 8 | 2.22 mi |
| Leisure City K-8 Center | 14950 SW 288TH ST | public | 1013 | PK - 8 | 2.39 mi |
| South Prep Scholars Academy | 24555 SW 112TH AVENUE | public | 64 | KG - 5 | 2.45 mi |
| Lincoln-marti School # 28 | 28800 SW 152ND AVE | private | 363 | PK - 12 | 2.59 mi |
| Somerset Academy Silver Palms At Princeton | 13390 SW 248 ST | public | 571 | KG - 8 | 2.64 mi |
| Somerset Academy Silver Palms | 23255 SW 115TH AVE | public | 1939 | KG - 8 | 2.64 mi |
| Goulds Elementary School | 23555 SW 112TH AVE | public | 407 | PK - 5 | 2.81 mi |
Free Benefits of account